ORIX恵比寿西ビル
こだわりで選びたい方におすすめ。渋谷区エリアで住まいをお探しなら「ORIX恵比寿西ビル」。お使いいただける駅は2駅あり、行き先に応じて使い分けができます。周辺には、徒歩3分で利用できる駅があります。
物件情報
ORIX恵比寿西ビル の物件概要
【店舗事務所】| 所在地 | 東京都渋谷区恵比寿西2丁目8-10 | ||
|---|---|---|---|
| 交通 | |||
| 賃料/坪単価 | 102.6872万円 / 3.08万円 | 管理費・共益費 | - |
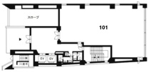
| 坪数/面積 | 33.34坪 / 110.22㎡ | 築年月(築年数) | 2009年 8月 (築16年) |
| 種別/構造 | 店舗事務所 / 鉄骨造 | 階建 | 6階建 地下1階 |
| 備考 | お使いいただける駅は2駅あり、行き先に応じて使い分けができます。周辺には、徒歩3分で利用できる駅があります。こちらはエレベーター付き物件です。 | ||
| 取扱会社 |
|
||
※地図上に表示される物件の位置は付近住所に所在することを表すものであり、実際の物件所在地とは異なる場合がございます。
ORIX恵比寿西ビルの空室情報













