Home Agent
>
(事業用(賃貸))路線・駅から探す
>
JR中央線
>
荻窪駅
>
三徳ビル
三徳ビルは過去にHome Agentがご紹介していた店舗事務所情報です!
三徳ビル
の過去掲載物件情報
現況の確認はお気軽にお問い合わせください。
※写真や図と実際の現状とが異なる場合は現状を優先させていただきます
※ご覧になりたい写真をクリックすると
拡大されて表示されます。
情報の見方
三徳ビル
の物件概要
【店舗事務所】
| 所在地 |
東京都杉並区上荻1丁目 |
| 交通 |
|
| 賃料/坪単価 |
- / - |
管理費・共益費 |
- |
| 坪数/面積 |
- / - |
築年月(築年数) |
1973年 7月 (築52年)
|
| 種別/構造 |
店舗事務所 / 鉄筋コンクリート |
階建 |
5階建 |
| 取扱会社 |
- Home Agent 株式会社Future Frontier Investment
- 東京都杉並区高円寺南2丁目20-5
- TEL:03-6304-9412
- 東京都知事 (3) 第95364号
- 全国宅地建物取引業協会、東京都宅地建物取引業協会
|
※地図上に表示される物件の位置は付近住所に所在することを表すものであり、実際の物件所在地とは異なる場合がございます。
三徳ビルへのお問い合わせ
三徳ビルの過去に掲載したお部屋
| 所在階 |
坪数/面積 |
方位 |
詳細 |
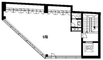
| 5階 |
*** / *** |
*** |
詳細を見る
|
- ▼ご希望の物件をお探しします

おすすめ物件
ハーモニーヒルズ
東京都杉並区高円寺南1丁目
丸ノ内線「東高円寺」駅 徒歩3分
築35年


- Home Agent 株式会社Future Frontier Investment
- 〒166-0003
- 東京都杉並区高円寺南2丁目20-5
- TEL/03-6304-9412
- FAX/03-6304-9413
- 東京都知事 (3) 第95364号