Home Agent > (事業用(賃貸))路線・駅から探す > JR中央線 > 高円寺駅 > 宝山ビル

宝山ビルは過去にHome Agentがご紹介していた店舗一部情報です!

宝山ビル の過去掲載物件情報 現況の確認はお気軽にお問い合わせください。

所在地 交通 建物
東京都杉並区高円寺南4丁目

中央線高円寺」駅 徒歩2分

丸ノ内線新高円寺」駅 徒歩10分

丸ノ内線東高円寺」駅 徒歩17分

築56年
4階建 地下1階
鉄筋コンクリート

お問い合わせ

物件情報

周辺施設

【外観】 | 宝山ビル | 鉄筋コンクリート造のがっちりとした建物。

※写真や図と実際の現状とが異なる場合は現状を優先させていただきます

  • 【外観】 | 宝山ビル | 鉄筋コンクリート造のがっちりとした建物。

※ご覧になりたい写真をクリックすると
拡大されて表示されます。

コメント【外観】鉄筋コンクリート造のがっちりとした建物。

情報の見方

宝山ビル の物件概要

【店舗一部】

所在地 東京都杉並区高円寺南4丁目
交通
賃料/坪単価 - / - 管理費・共益費 -
坪数/面積 - / - 築年月(築年数) 1969年 3月 (築56年)
種別/構造 店舗一部 / 鉄筋コンクリート 階建 4階建 地下1階
取扱会社
  • Home Agent 株式会社Future Frontier Investment
  • 東京都杉並区高円寺南2丁目20-5 
  • TEL:03-6304-9412
  • 東京都知事 (3) 第95364号
  • 全国宅地建物取引業協会、東京都宅地建物取引業協会

※地図上に表示される物件の位置は付近住所に所在することを表すものであり、実際の物件所在地とは異なる場合がございます。

宝山ビル へのお問い合わせは Home Agent 株式会社Future Frontier Investmentまで

03-6304-9412

〒166-0003

東京都杉並区高円寺南2丁目20-5 

10:00~19:00  定休日:なし

お問い合わせ

宝山ビルへのお問い合わせ

必要項目の入力

0/0
必須項目完了

確認画面へ
お進み下さい

0/0
必須項目完了

確認画面へ
お進み下さい

必須

お名前

任意

電話番号

必須

メールアドレス

任意

内容

【宝山ビルへのお問い合わせ】

利用規約及びプライバシーポリシーを必ずお読みください。左記内容に同意いただいた場合は、確認画面へお進み下さい。

未入力項目があります

宝山ビルの過去に掲載したお部屋

所在階 坪数/面積 方位 詳細
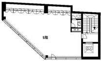
1階 *** / *** *** 詳細を見る
▼ご希望の物件をお探しします
物件リクエスト

おすすめ物件

ハーモニーヒルズの画像

ハーモニーヒルズ

東京都杉並区高円寺南1丁目

丸ノ内線「東高円寺」駅 徒歩3分

築35年

会社概要

会社画像
Home Agent 株式会社Future Frontier Investment
  • 〒166-0003
  • 東京都杉並区高円寺南2丁目20-5 
  • TEL/03-6304-9412
  • FAX/03-6304-9413
  • 東京都知事 (3) 第95364号

トップへ戻る